TAMAN IMPIAN JAYA, GEMENCHEH

Permohonan Dibuka

Harga Dari RM230,000

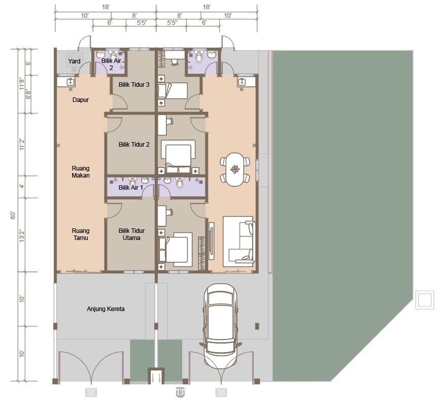
RUMAH TERES 1 TINGKAT (INTERMEDIATE)

Bilik Mandi

Terdapat 2 Bilik Mandi

Bilik Tidur

Terdapat 3 Bilik Tidur

Keluasan Unit

936 kps


Kemudahan

Dewan Serbaguna


Maklumat Pemaju

Nama Pemaju

SUMMER HARVEST SDN. BHD.

No. Telefon
066326220
Emel
eunice.sipm@gmail.com
Alamat Pemaju

161 & 162,
JALAN HARUAN 5/5, OAKLAND COMMERCE SQUARE,
70300 SEREMBAN, NEGERI SEMBILAN


Ringkasan Projek

Jumlah Unit

20

Keluasan Tapak Projek

1.50

Pemilikan Tanah

Persendirian

Status Rezab Tanah

Bukan Rezab Melayu

Hak Milik Tanah

Milik Kekal

Tarikh Tutup Permohonan

31/01/2026

Muat Turun Brosur

Muat Turun Brosur 1

Lokasi Perumahan


Keterangan Projek

PPAM TAMAN IMPIAN JAYA TERLETAK DI MUKIM PEKAN GEMENCHEH BARU, DAERAH TAMPIN, NEGERI SEMBILAN DARUL KHUSUS. PROJEK INI TERLETAK 650M DARI JALAN UTAMA (JALAN TAMPIN - GEMAS), 700M DARI PEKAN GEMENCHEH. LOKASINYA STRATEGIK DAN BERHAMPIRAN DENGAN PELBAGAI KEMUDAHAN HARIAN JUGA BERADA DALAM RADIUS 2KM, TERMASUK KEDAI, MASJID, SEKOLAH DAN PASARAYA. KESEMUA KEMUDAHAN INI MAMPU MEMENUHI KEPERLUAN PEMBELI, MENJADIKAN PROJEK INI SEBUAH KAWASAN YANG SELESA, STRATEGIK DAN IDEAL UNTUK DIDIAMI, DENGAN NILAI HARTANAH BERTANAH YANG BERPOTENSI MENINGKAT PADA MASA AKAN DATANG.