TAMAN TAS INDAH

Permohonan Ditutup

Harga Dari RM391,100

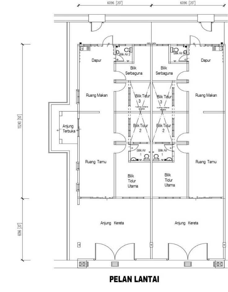
RUMAH TERES 1 TINGKAT (CORNER LOT)

Bilik Mandi

Terdapat 2 Bilik Mandi

Bilik Tidur

Terdapat 4 Bilik Tidur

Keluasan Unit

1249 kps

Harga Dari RM275,000

RUMAH TERES 1 TINGKAT (INTERMEDIATE)

Bilik Mandi

Terdapat 2 Bilik Mandi

Bilik Tidur

Terdapat 4 Bilik Tidur

Keluasan Unit

1195 kps


Kemudahan

Klinik Komuniti

Surau / Masjid

Tadika


Maklumat Pemaju

Nama Pemaju

I-CITY DEVELOPMENT SDN. BHD

No. Telefon
0129229339
Emel
icity.travis@gmail.com
Alamat Pemaju

B-56, GROUND FLOOR,
JALAN AIR PUTIH 2,
25300 KUANTAN, PAHANG


Ringkasan Projek

Jumlah Unit

10

Keluasan Tapak Projek

22873.00

Pemilikan Tanah

Persendirian

Status Rezab Tanah

Rezab Melayu

Hak Milik Tanah

Pajakan

Tarikh Tutup Permohonan

31/01/2026

Muat Turun Brosur

Muat Turun Brosur 1

Lokasi Perumahan


Keterangan Projek

PROJEK PPAM TAMAN TAS INDAH, MERUPAKAN PROJEK PEMBANGUNAN PENJAWAT AWAM MALAYSIA (PPAM) YANG TERLETAK DI LOT 151974 (LOT ASAL PT 121647), LORONG PANDAN DAMAI 2/217, PANDAN DAMAI 2, MUKIM KUALA KUANTAN, DAERAH KUANTAN, PAHANG DARUL MAKMUR DAN MELIBATKAN PEMBINAAN 10 UNIT RUMAH TERES SETINGKAT. PERUMAHAN INI ADALAH TANAH PAJAKAN 96 TAHUN (TAMAT PADA 10/07/2121) (REZAB MEALYU), MEMPUNYAI 4 BILIK TIDUR, 2 BILIK AIR DAN DILENGKAPI JUBIN LANTAI, LANTAI KONKRIT SELEBAR 7 KAKI DI BELAKANG RUMAH DAN ANTI CLIMB FENCING DIBERIKAN. PROJEK INI KINI SUDAH DISIAPKAN DAN CERTIFICATE OF COMPLETION AND COMPLIANCE (CCC) SUDAH DIPEROLEHI. LOKASI PROJEK PERUMAHAN ADALAH STRATEGIK DI MANA IA TERLETAK BERDEKATAN DENGAN BANDAR TAMAN TAS. PROJEK INI JUGA BERHAMPIRAN DENGANSURAU, BANK, LAPANGAN TERBANG SULTAN AHMAD SHAH DAN SEKOLEH MENENGAH, PASARAYA, HOSPITAL DAN KEDAI MAKANAN. HARGA RUMAH DENGAN KELUASAN DARI 1,540KPS HINGGA 1,841KPS ADALAH BERMULA DARI RM 275,000.00 DAN RM 341,211.00 SELEPAS SUBSIDI KERAJAAN SEBANYAK RM 55,000.00.