PPAM TAMAN WARISAN KELULUT

Permohonan Ditutup

Harga Dari RM152,500 ~ RM256,144

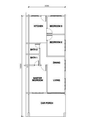
RUMAH TERES 1 TINGKAT

Bilik Mandi

Terdapat 2 Bilik Mandi

Bilik Tidur

Terdapat 3 Bilik Tidur

Keluasan Unit

1000 kps


Kemudahan

Kedai Runcit

Klinik Komuniti

Surau / Masjid


Maklumat Pemaju

Nama Pemaju

RAWSON ENTERPRISE SDN. BHD.

No. Telefon
095139377
Emel
rawson_ent@yahoo.com
Alamat Pemaju

NO. 56
JALAN GAMBUT
25000 KUANTAN, PAHANG


Ringkasan Projek

Jumlah Unit

34

Keluasan Tapak Projek

4.08

Pemilikan Tanah

Persendirian

Status Rezab Tanah

Rezab Melayu

Hak Milik Tanah

Milik Kekal

Tarikh Tutup Permohonan

14/02/2017

Muat Turun Brosur

Muat Turun Brosur 1
Muat Turun Brosur 2

Lokasi Perumahan


Keterangan Projek

PROJEK TERLETAK DI KAWASAN STRATEGIS DI MARANG. IA BERDEKATAN DENGAN KEMUDAHAN YANG SEDIADA SEPERTI MASJID, SEKOLAH, STESEN PETROL , KLINIK KESIHATAN DAN PUSAT KOMERSIAL SEPERTI PASARAYAKU DAN KOMPLEKS IKIM MARANG. PEJABAT KERAJAAN YANG TERLETAK DALAM RADIUS 10KM TERMASUK IBU PEJABAT POLIS DAERAH MARANG, MAJLIS DAERAH MARANG, PEJABAT DAERAH DAN TANAH MARANG DAN JABATAN PERTAHANAN AWAM MALAYSIA, KLINIK KESIHATAN, DLL. JARAK KE BANDAR MARANG ADALAH DALAM 7KM DAN JARAK KE PUSAT BANDAR KUALA TERENGGANU ADALAH DALAM 24KM. HARGA RUMAH TERES 1 TINGKAT ADALAH RM152,500.00 HINGGA RM 256,143.97 BERGANTUNG KEPADA JENIS RUMAH DAN KOS PEGUAMAN DALAH DITANGGUNG OLEH PEMAJU.