ADIWARNA

Permohonan Ditutup

Harga Dari RM196,000

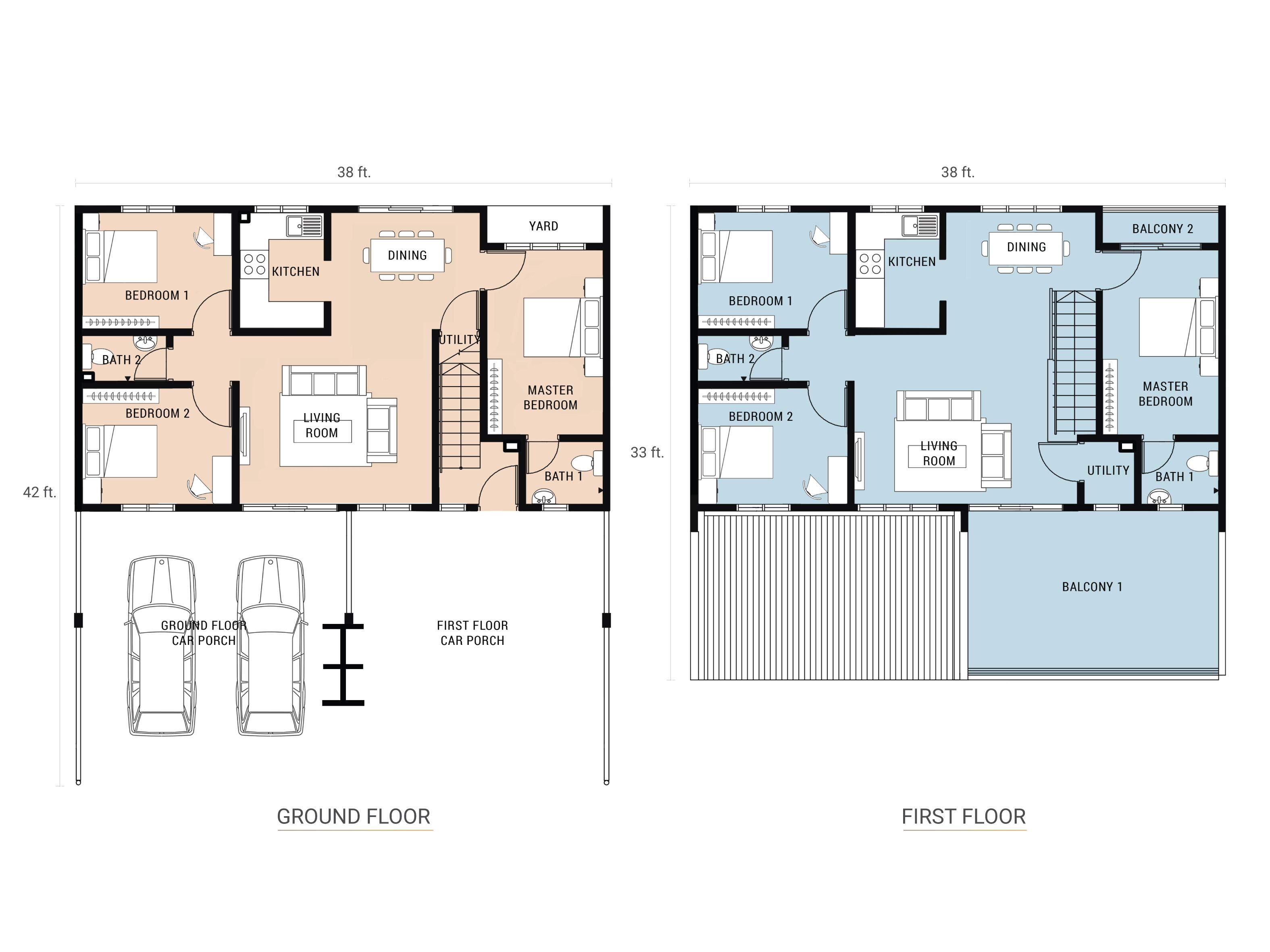
APARTMEN 2 TINGKAT (ATAS)

Bilik Mandi

Terdapat 2 Bilik Mandi

Bilik Tidur

Terdapat 3 Bilik Tidur

Keluasan Unit

1493 kps

Harga Dari RM196,000

APARTMEN 2 TINGKAT (BAWAH)

Bilik Mandi

Terdapat 2 Bilik Mandi

Bilik Tidur

Terdapat 3 Bilik Tidur

Keluasan Unit

1173 kps


Kemudahan

Dewan Serbaguna

Surau / Masjid

Tadika


Maklumat Pemaju

Nama Pemaju

NALURI WIJAYA SDN BHD

No. Telefon
0172609003
Emel
info@spb.my
Alamat Pemaju

17 A&B, PLAZA SERI KUBU,
JALAN TAN CHAY YAN
75300 MELAKA TENGAH, MELAKA


Ringkasan Projek

Jumlah Unit

184

Keluasan Tapak Projek

12.11

Pemilikan Tanah

Persendirian

Status Rezab Tanah

Bukan Rezab Melayu

Hak Milik Tanah

Milik Kekal

Tarikh Tutup Permohonan

30/04/2026

Muat Turun Brosur

Muat Turun Brosur 1

Lokasi Perumahan


Keterangan Projek

PROJEK ADIWARNA MERUPAKAN PEMBANGUNAN RUMAH PANGSA PERTAMA DI MALAYSIA YANG MENGETENGAHKAN KONSEP EKSKLUSIF “VILLAMENT”. CIRI-CIRI DARI VILLA + APARTMEN MENJADIKAN “VILLAMENT” BERBEZA DARI PERUMAHAN YANG ADA DI DALAM PASARAN. KONSEP “VILLAMENT” JUGA MERUPAKAN KONSEP RUMAH YANG TELAH MEMENANGI PELBAGAI ANUGERAH KEBANGSAAN MALAHAN PERINGKAT DUNIA, ANTARANYA “WORD BEST AFFORDABLE LANDED HOUSE” PADA 2024. SETIAP BILIK DAN RUANG MEMPUNYAI PENGUDARAAN DAN PENCAHAYAAN SEMULA JADI MENJADIKAN “VILLAMENT” LEBIH SELESA UNTUK DIDUDUKI. SETIAP UNIT MEMPUNYAI KELUASAN LEBAR RUMAH 38 KAKI YANG MEMBOLEHKAN DUA PARKIR KENDERAAN DISEDIAKAN SECARA BERSEBELAHAN DI DEPAN RUMAH — KELEBARAN 38 KAKI JUGA DAPAT MENYEDIAKAN RUANG BILIK YANG LEBIH BESAR BERBANDING DENGAN RUMAH LAIN. TAMAN INI TURUT MENAMPILKAN KONSEP KOMUNITI BERPAGAR DAN BERPENGAWAL, MEMASTIKAN KESELAMATAN SERTA KETENANGAN FIKIRAN UNTUK SEMUA PENDUDUK. ANTARA CIRI MENARIK KEDIAMAN INI IALAH SETIAP BILIK TIDUR DIREKA UNTUK MEMUATKAN KATIL BERSAIZ 'QUEEN', MEMBERIKAN KESELESAAN MAKSIMUM BUAT SEISI KELUARGA. TAMBAHAN PULA, KEMUDAHAN GAYA HIDUP SIHAT TURUT DISEDIAKAN MELALUI TREK JOGING DI LAMAN BELAKANG SETIAP RUMAH YANG MENYUSURI KAWASAN KEDIAMAN.