PPAM KG PANDAN 1

Permohonan Ditutup

Harga Dari RM230,000 ~ RM250,000

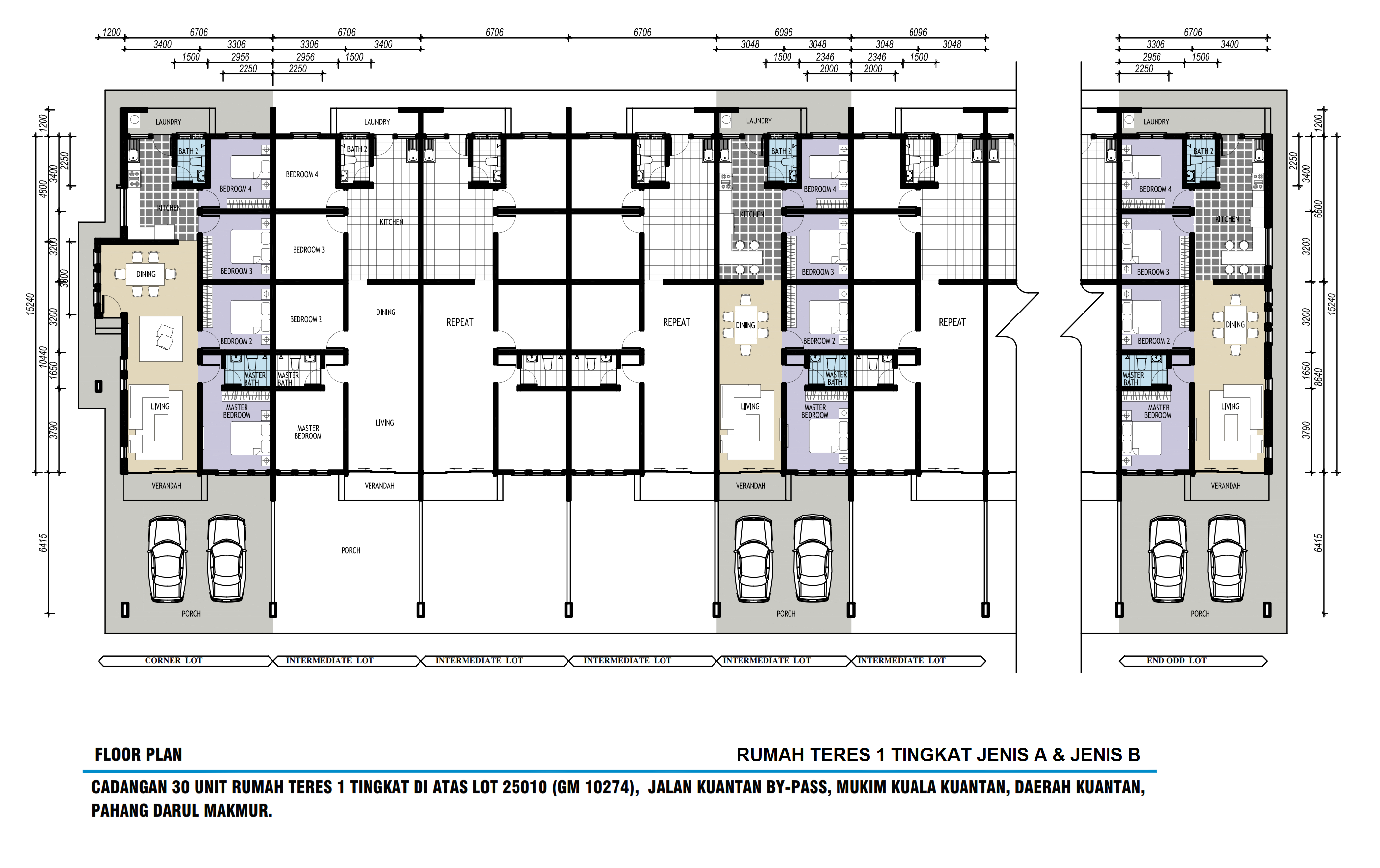
RUMAH TERES 1 TINGKAT JENIS B

Bilik Mandi

Terdapat 2 Bilik Mandi

Bilik Tidur

Terdapat 4 Bilik Tidur

Keluasan Unit

1364 kps


Maklumat Pemaju

Nama Pemaju

CASA ANEKA SDN BHD

No. Telefon
095157888
Emel
casaaneka58@gmail.com
Alamat Pemaju

NO. 58, JALAN PUTRA SQUARE 7,
PUTRA SQUARE,
25200 KUANTAN, PAHANG


Ringkasan Projek

Jumlah Unit

14

Keluasan Tapak Projek

2.21

Pemilikan Tanah

Persendirian

Status Rezab Tanah

Rezab Melayu

Hak Milik Tanah

Milik Kekal

Tarikh Tutup Permohonan

15/12/2021

Muat Turun Brosur

Muat Turun Brosur 1

Lokasi Perumahan


Keterangan Projek

PROJEK PPAM KG PANDAN 1, PAHANG MELIBATKAN PEMBINAAN 30 UNIT RUMAH TERES 1 TINGKAT DI ATAS TANAH HAKMILIK KEKAL REZAB MELAYU SELUAS 2.205 EKAR. PROJEK PERUMAHAN INI TELAH MENDAPAT KELULUSAN DARIPADA PIHAK MAJLIS PERBANDARAN KUANTAN. LOKASI PROJEK PERUMAHAN INI ADALAH STRATEGIK DI MANA IA TERLETAK BERDEKATAN DENGAN LAPANGAN TERBANG SULTAN AHMAD SHAH DAN TERDAPAT KEMUDAHAN AWAM YANG LAIN SEPERTI KLINIK KESIHATAN, SEKOLAH, PASARAYA, BANK DAN PEJABAT – PEJABAT KERAJAAN UNTUK KEMUDAHAN PENDUDUK SETEMPAT. PROJEK PERUMAHAN INI JUGA TERLETAK BERHAMPIRAN DENGAN BANDAR KUANTAN IAITU KIRA – KIRA 15KM (20 MINIT). REKA BENTUK RUMAH YANG MODEN DAN MENARIK INI SESUAI UNTUK DIDIAMI OLEH SESIAPA YANG INGINKAN RUMAH KEDIAMAN YANG ADA KELAINAN. HARGA JUALAN BAGI RUMAH TERES 1 TINGKAT JENIS A (16 UNIT) DENGAN KELUASAN LANTAI 1,240 KAKI PERSEGI ADALAH BERMULA DARI RM 204,000.00 DAN HARGA JUALAN BAGI RUMAH TERES 1 TINGKAT JENIS B (14 UNIT) DENGAN KELUASAN LANTAI 1,364 KAKI PERSEGI ADALAH BERMULA DARI RM 230,000.00 YANG TERDIRI DARIPADA 4 BILIK TIDUR DAN 2 BILIK AIR. HARGA JUALAN UNTUK PROJEK PERUMAHAN INI ADALAH JAUH LEBIH MURAH DARIPADA HARGA PASARAN.